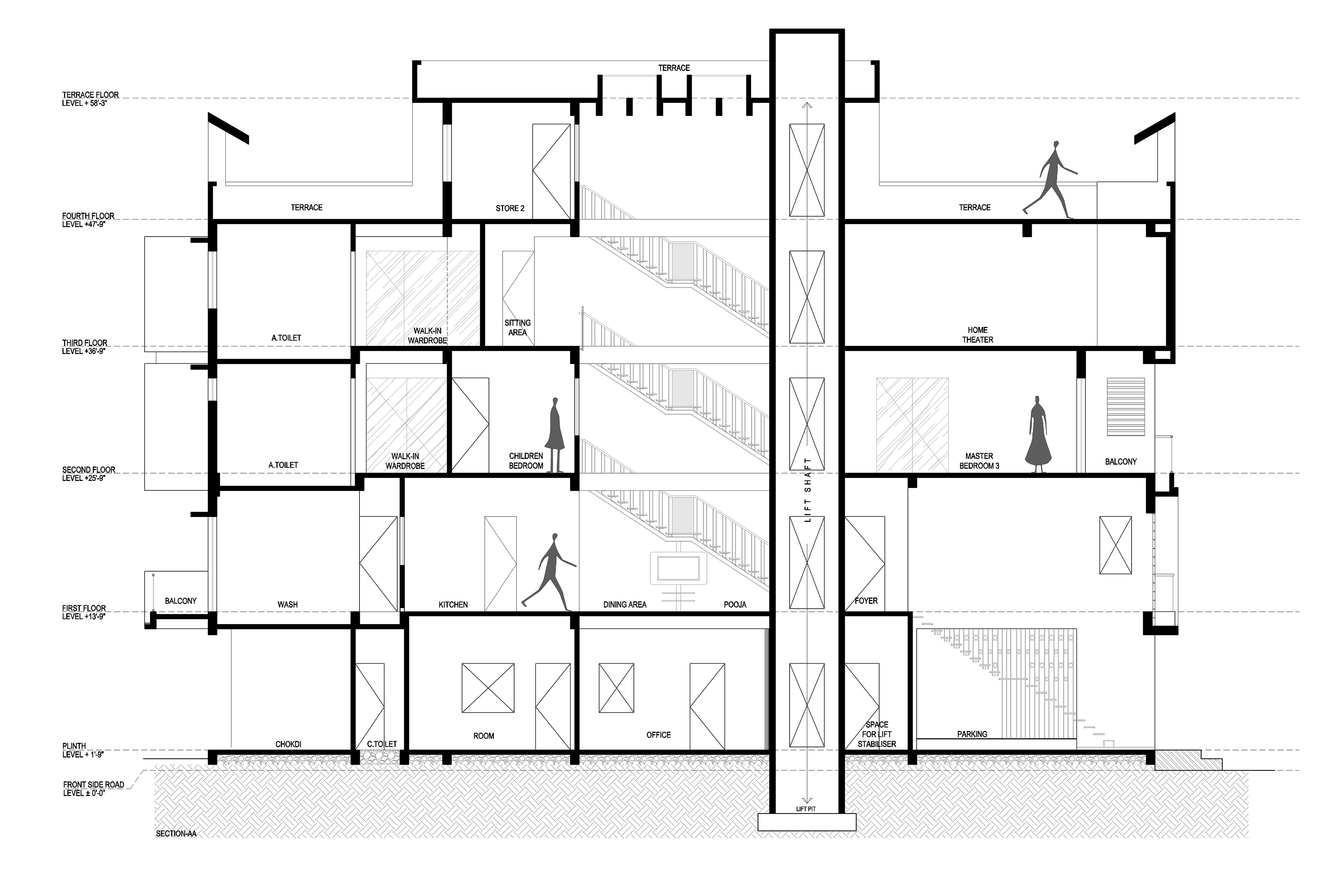
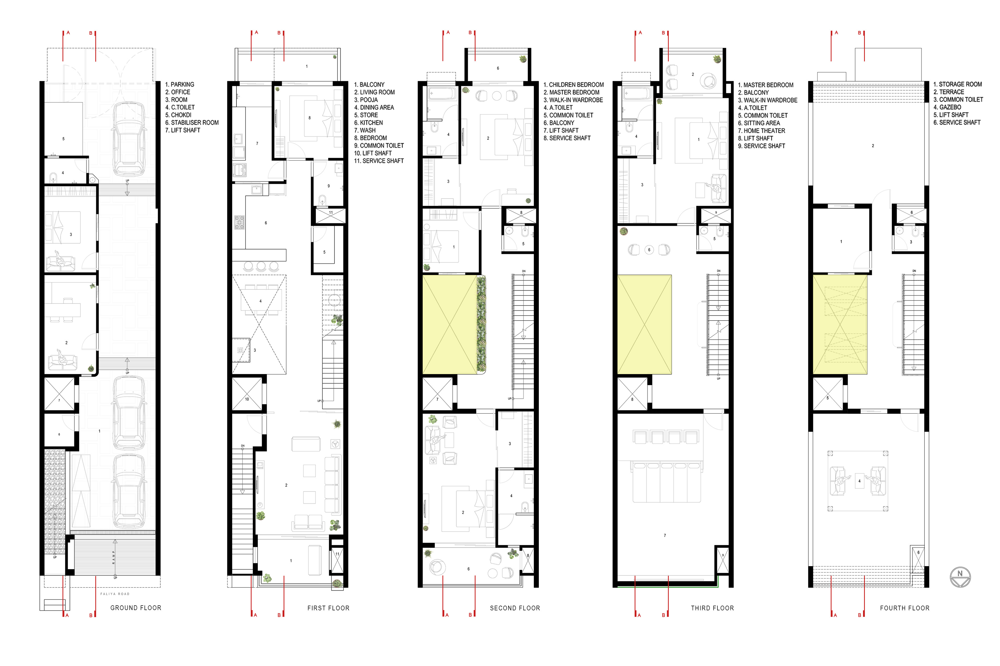
This project involved designing a home for a joint family of seven on a 20’ x 160’ plot, with an 80’ x 20’ area for the residence and the remaining space for farming equipment storage. The house shares walls on the longer east and west sides, with an approach road on the north –front side and on the south-rear side. The ground floor accommodates utility spaces, including parking, an office, and a passage to the rear to stay connected from the rear side approach road.


Name
Ghantiwala Residence
Type
Residential
Scope
Architecture, Interior Design
Location
Surat, India
Area
8,000 sq.ft
Photos
Naixa Visual

The main living areas are located on the first floor, featuring a spacious living room, triple-height dining area, mandir, kitchen, utility spaces, and a day bedroom. The second floor includes three bedrooms—two master suites and a guest room—while the third floor serves as a private retreat with a master bedroom, seating area, and home theatre.

The north-facing façade maximizes street views and natural light with large openings and balconies. A central triple-height atrium with a skylight illuminates the interior, while rear balconies minimize direct sunlight, ensuring a bright, comfortable living environment.


  • Over 10 years of industry experience.

  • Completed over 100 successful projects.

  • Projects featured by top national publishers.

  • Known for delivering on time and within budget.

  • Recognized with multiple national awards.

  • Trade discounts are passed directly to clients.

GET IN TOUCH
Let's Bring Your Vision to Life

Fill out the form and our manager will contact you for consultation.